Kontorshus, Skeppsbron 4
Publicerad
Författare
Typ
Program
Modellbyggare
Tidskriftstitel
ISSN
Volymtitel
Utgivare
Chalmers tekniska högskola / Institutionen för arkitektur och samhällsbyggnadsteknik
Chalmers University of Technology / Department of Architecture and Civil Engineering
Chalmers University of Technology / Department of Architecture and Civil Engineering
Sammanfattning
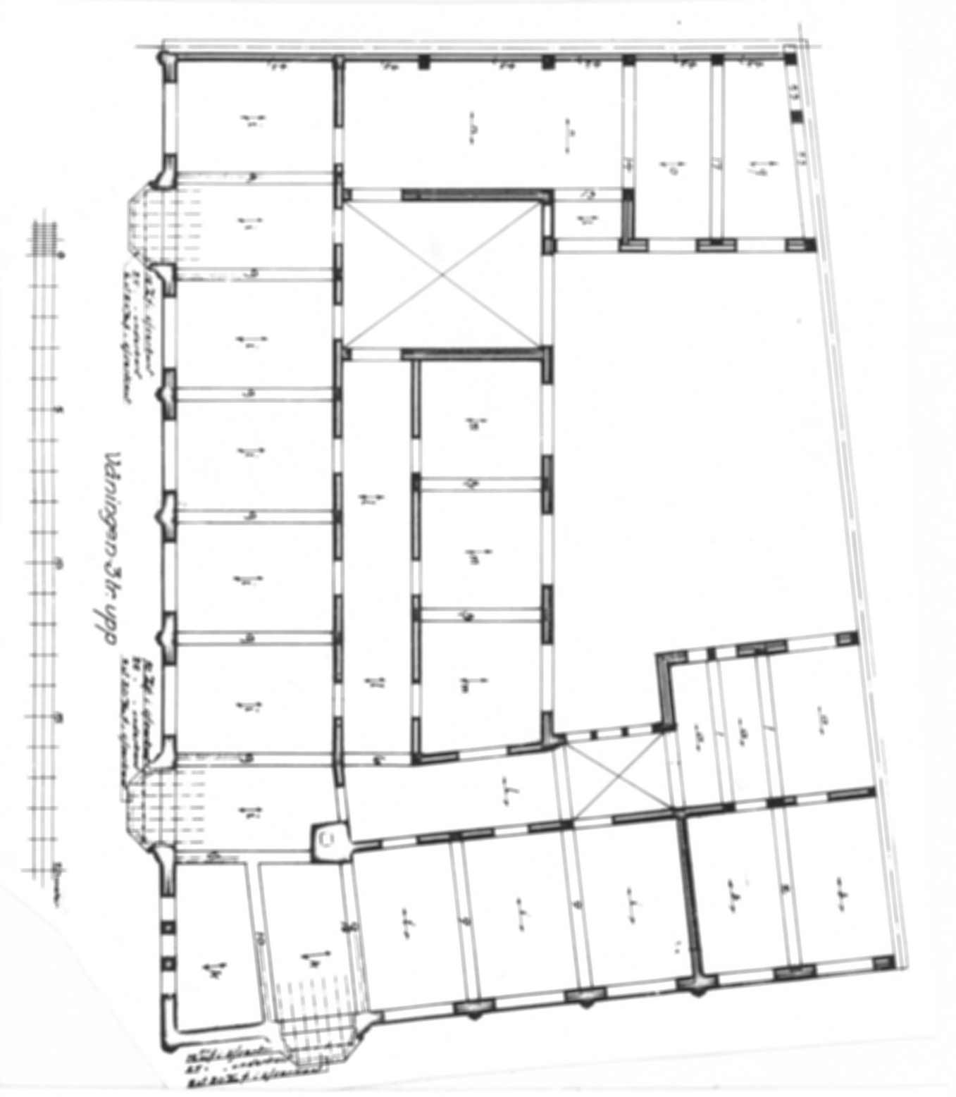
1915-1916 byggdes ett kontorshus åt aktiebolaget Fyran efter det så kallade effektivsystemet. Metoden innebar att huset i sin helhet göts i betong. Denna metod valdes bland annat på grund av de dåliga grundförhållandena vid älvstranden. Ovan grundplåtar, bestående av 15-17 meter långa träpålar, gjöts en styv lastfördelande platta av 85 cm dubbelarmerad betong. Ovan plattan och utmaed gjutna grundmurar göts sedan väggarna som genom stora hålrum i betongkonstruktionen blev lättareän vad konventionella murade väggar hade blivit. Arkitekt och byggledare var Björner Hedlund och entrepenaden utfördes av Göteborgs Murbruks- och Betong Aktiebolag. Ritningar i Göteborgs byggnadsnämnds arkiv.
Beskrivning
Ämne/nyckelord
Citation
Arkitekt (konstruktör)
Hedlund, Björner
Geografisk plats
Skeppsbron, Göteborg
Skeppsbron, Göteborg, Sweden
Skeppsbron, Göteborg, Sweden
Byggnad (typ)
Byggår
1915-16
Modelltyp
Skala
1:100
Teknik / material
Index
1983-01
