Hus Grete
Publicerad
Författare
Typ
Program
Modellbyggare
Tidskriftstitel
ISSN
Volymtitel
Utgivare
Chalmers tekniska högskola / Institutionen för arkitektur och samhällsbyggnadsteknik
Chalmers University of Technology / Department of Architecture and Civil Engineering
Chalmers University of Technology / Department of Architecture and Civil Engineering
Sammanfattning
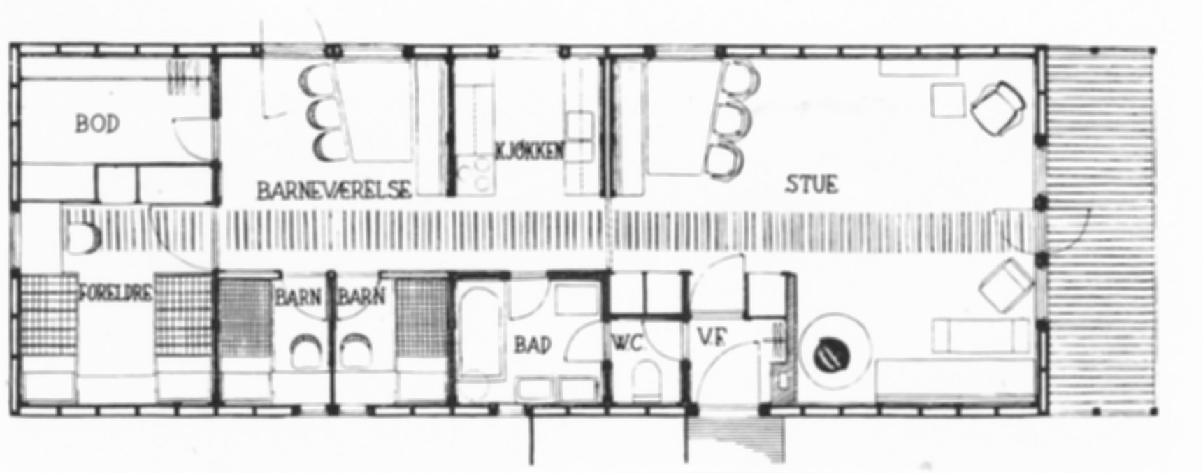
Huset ritades av Odd Brockmann 1952 till föreningen Brukskonsts utställning i Oslo. Han ville visa ett exempel på ett billigt bygge med en enkel och funktionell plan med vackra rumssamband. Huset har en fast kärna av vindfång, wc, badrum och diskbänk, i övrigt är planen möjlig att variera. I de illustrerade alternativen finns två större allrum och 3-4 sovkabiner. Utställningshuset var enkelt inrett, delvis med fasta möbler. Stommen består av ramar - bestående av golvbjälkar, väggreglar och takstolar. Ramarnas bredd, 550 cm, är baserad på den mest ekonomiska bjälklagslängden och de är upplagda på grunden 50 cm från fasad. Ramarna avstyvas av den liggande väggpanelen, Invändigt är taket något brutet för att ge en samlande volym. Alla väggar är klädda med skivor och skarvarna täckta med breda lister.En gemensam entré med förråd och källare kan förena två likadana hus till ett H-format parhus.
Beskrivning
Ämne/nyckelord
Citation
Arkitekt (konstruktör)
Brockmann, Odd
Geografisk plats
Oslo, Norge
Oslo, Norway
Oslo, Norway
Byggnad (typ)
Byggår
1952
Modelltyp
Skala
Teknik / material
Index
1963-19
