Båtsmanstorp
Publicerad
Författare
Typ
Program
Modellbyggare
Tidskriftstitel
ISSN
Volymtitel
Utgivare
Chalmers tekniska högskola / Institutionen för arkitektur och samhällsbyggnadsteknik
Chalmers University of Technology / Department of Architecture and Civil Engineering
Chalmers University of Technology / Department of Architecture and Civil Engineering
Sammanfattning
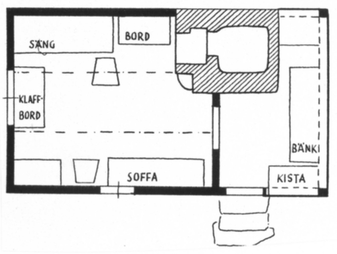
Torpet har en enkel planform med stor förstuga och stuga med eldstad. Denna typ av enkelstuga har förekommit särskilt i västra Sverige
Beskrivning
Ämne/nyckelord
Citation
Arkitekt (konstruktör)
Geografisk plats
Tjörn, Bohuslän
Tjörn, Bohuslän, Sweden
Tjörn, Bohuslän, Sweden
Byggnad (typ)
Byggår
Modelltyp
Skala
1:10
Teknik / material
Index
1971-01
